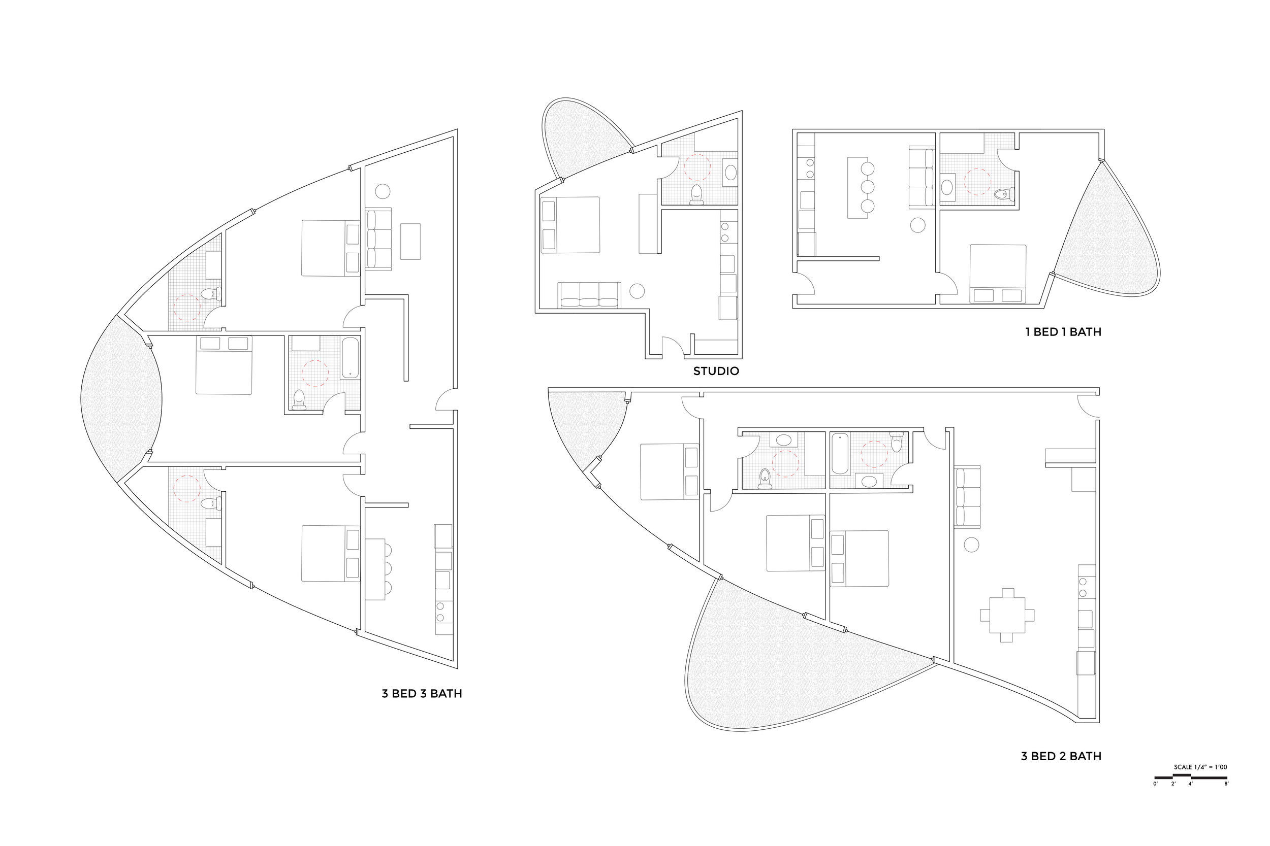
In this project, my group and I had to design affordable housing units on four different sites along Vermont Avenue. Designing multi-residential buildings is understood as an integral part of the city, the neighborhood, and the respective community. Built on the limited equity co-operative model, which allows residents to collectively own and manage the house they live in, all buildings will be considered not-for-profit and provide affordable long-term rental units. In combination with the aim of social and economic inclusion, the buildings strive for environmental sustainability. Developing an overall idea, strategy, and general determination of our cooperative, I designed my own project on one of the four sites, while still considering the cooperative’s general framework.

Previous
Previous

KTT

Next
Next

TOPOGRAPHY