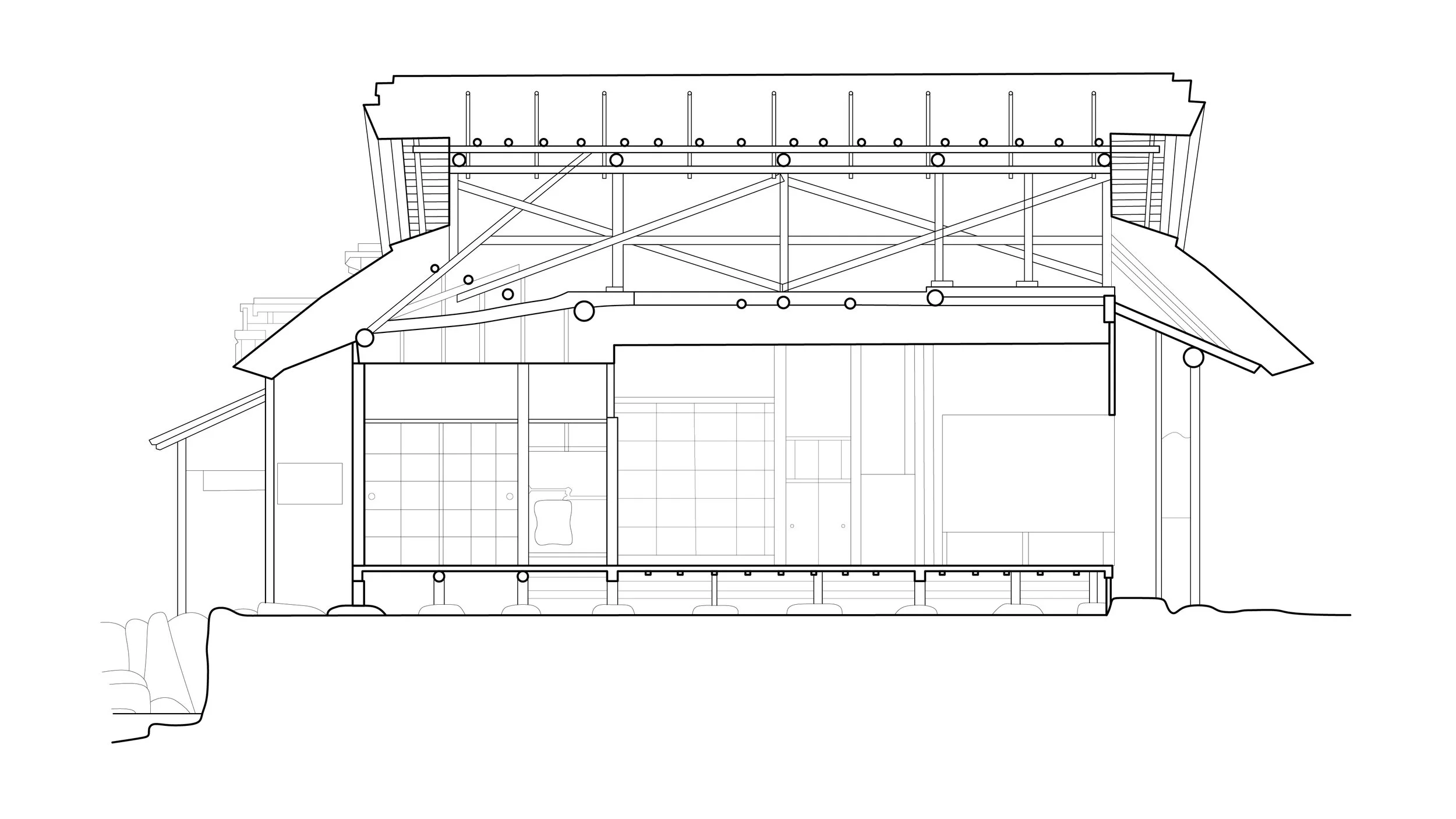
SHOKIN - TEI

This project was conducted during my study abroad in East Asia (AALU). My teammate and I studied the anatomy of a Japanese teahouse at the Katsura Imperial Villa.

Previous
Previous

TOPOGRAPHY

Next
Next

THE QUEEN'S MEDICAL CENTER (HKS)