Revisiting Minimum Dwelling

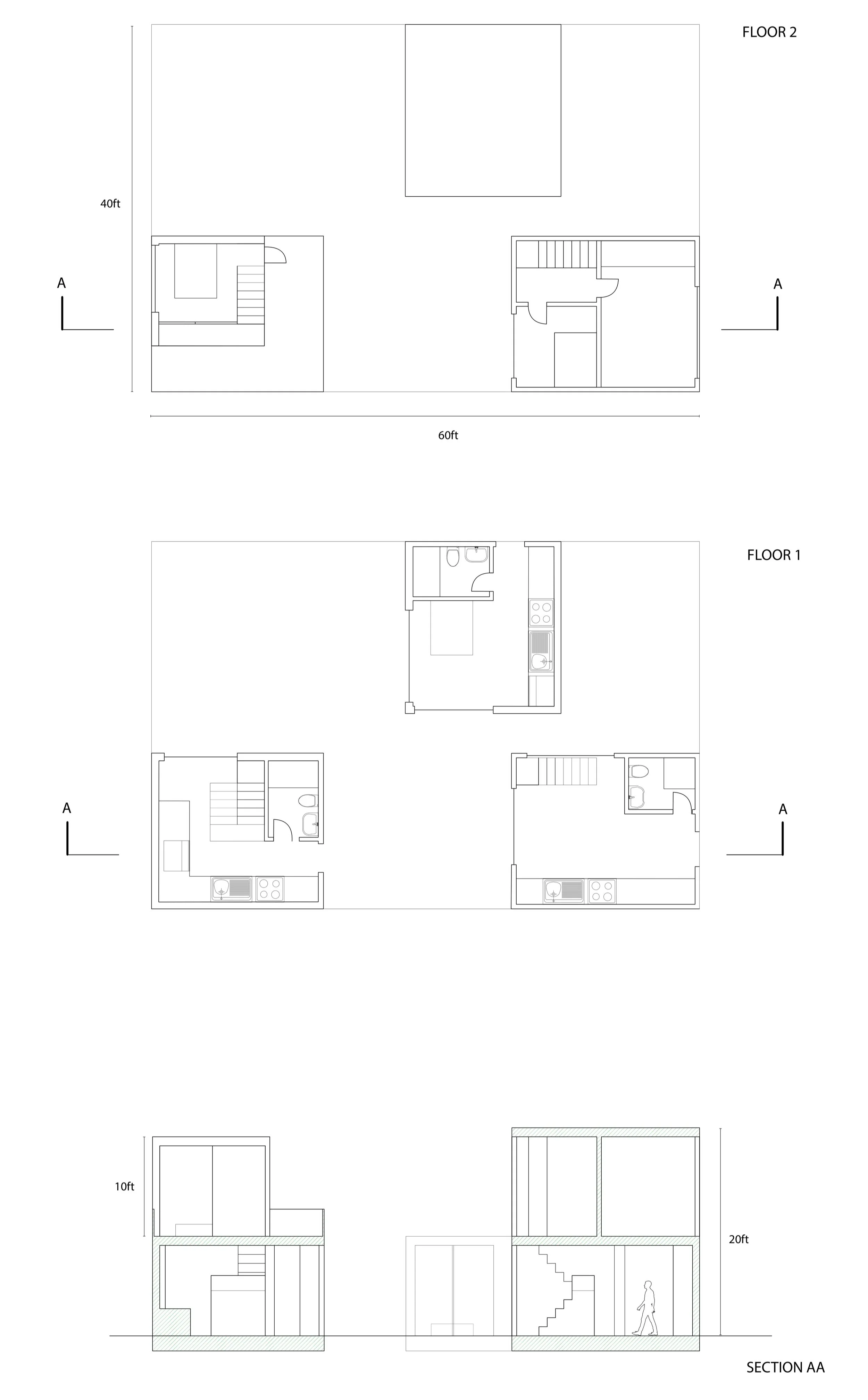
In this project, each student team is expected to research dimensions of living unit types (accommodating one person to three persons). Student teams are then to develop an “ideal” cluster of three units, exploring a variety of part to whole relationships; embracing of formal repetition; foregrounding open space; prioritizing shared resources; and maximizing environmental advantages.

Previous
Previous

SUPER PLAN

Next
Next

DANCE