Dwelling Spaces

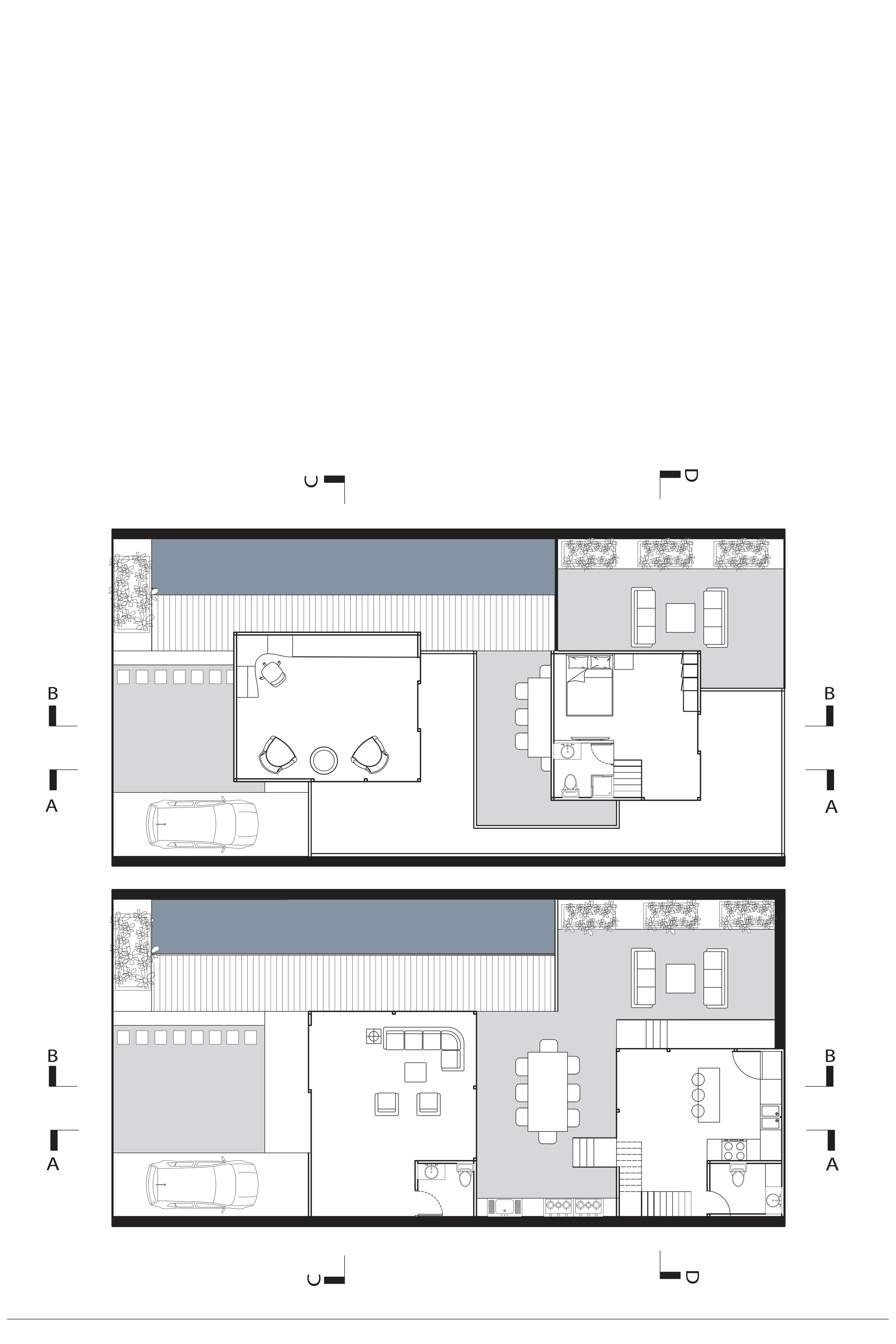
This project consists of a two-level house composed of two main buildings interconnected by a garden and a bridge. The main goal for this project was to create a dwelling and work space while providing the “spaces in between”.

Previous
Previous

DANCE